Penthouse - Te huur

€ 1.350
Koning Albertstraat 119 B3, 2381 Weelde
2 160 m² 1

Omschrijving

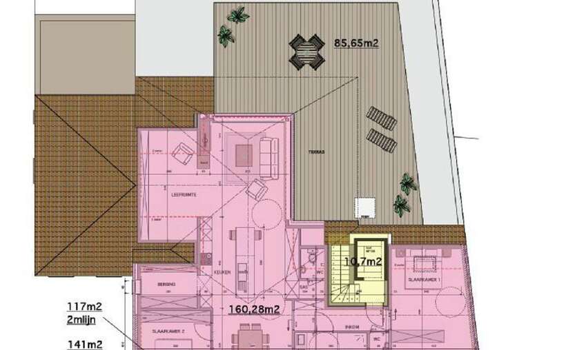
Penthouse van 160m² + terras van 86m².

Luxueus dakappartement (penthouse) in het centrum van Weelde

In het hart van Weelde bevindt zich dit recent (2014) en hoogwaardig afgewerkte dakappartement met een royale bewoonbare oppervlakte van ca. 160 m². Dit exclusieve appartement combineert ruimte, comfort en een uitstekende ligging.

Gelegen op de tweede verdieping en bereikbaar via zowel trap als lift, verwelkomt de penthouse u via een inkomhal met apart gastentoilet. De bijzonder ruime en lichtrijke leefruimte geniet van een aangename zoninval en sluit naadloos aan op het indrukwekkende, zuidgericht terras van maar liefst 86 m², waar u in alle rust kunt genieten van een open en vrij uitzicht.

Verder beschikt het appartement over een volledig geïnstalleerde keuken met eethoek en aansluitende wasplaats, een gezellige zithoek, twee volwaardige slaapkamers waarvan één met directe toegang tot het terras, en een luxueus ingerichte badkamer. De badkamer is voorzien van een dubbel lavabomeubel, inloopdouche, ligbad en toilet.

De volledige woning is uitgerust met vloerverwarming en afgewerkt met een stijlvolle keramische tegel in parketlook, wat bijdraagt aan het moderne en warme karakter van het appartement.

Achteraan het gebouw hoort één parkeerplaats bij het appartement.

EPC: 134 kWh/m²/jaar
Gemeenschappelijke kosten: inbegrepen
Beschikbaar vanaf: 01/02/2026

Een unieke kans voor wie op zoek is naar comfortabel en luxueus wonen op een centrale locatie.

Lees meer

Financieel

  • Prijs: € 1.350,00/maand
  • Provisie: € 40,00
  • Beschikbaarheid datum: 01 Februari 2026

Terrein

  • Tuin: Nee
  • Oriëntatie terras: Zuid
  • Oriëntatie terras 1: Zuid

Stedenbouw

  • Bestemming: Woongebied
  • Dagvaarding: Geen rechterlijke herstelmaatregel of bestuurlijke maatregel opgelegd
  • O-peil: Niet gelegen in een overstromingsgevoelig gebied
  • G-score: A
  • P-score: C

Ligging

  • Buurt: Rustig
  • School nabij: 50m
  • Winkels nabij: 25m
  • Openbaar vervoer nabij: 10m
  • Sportcentrum nabij: 50m

Comfort

  • Gemeubeld: Nee
  • Parlofoon: Ja
  • Lift: Ja

Technieken

  • Elektriciteit: Ja
  • Telefoonbekabeling: Ja

Energie

  • 134
  • EPC score: 134 kWh/m²/jaar
  • EPC code: 20240906-0003363205-RES-1
  • EPC klasse: B
  • Dubbele beglazing: Ja
  • Ramen: Aluminium
  • Elektriciteitskeuring: Ja, conform
  • Type verwarming: Vloerverwarming
  • Verwarming: Individueel

Gebouw

  • Bewoonbare oppervlakte: 160,00 m²
  • Aantal gevels: 2
  • Bouwjaar: 2014
  • Staat: Goede staat
  • Verdiep: 2

Indeling

  • Keuken: Ja, VS volledig geïnstalleerd
  • Badkamer type: Douche en ligbad
  • Toiletten: 2
  • Terras: 86,00 m²
  • Wasplaats: Ja

Parking

  • Parkings buiten: 1

Meer info over deze eigendom

Bedankt voor je bericht, we contacteren je zo spoedig mogelijk.
Er was een probleem bij het versturen van het formulier, gelieve opnieuw te proberen.

Jouw woning ook verkopen/verhuren? Contacteer ons