Appartement - Te koop
€ 239.500
Klinkstraat 32 B7, 2300 Turnhout
2
120 m²
1
1
Omschrijving
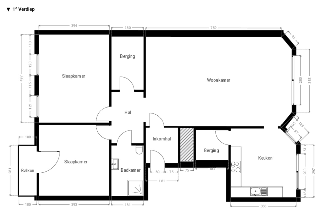
Ruim(120m²) 2 slpk appartement inclusief garagebox.
Wonen als een koning(in)op 120m² – mét garage voor je stalen ros
Op zoek naar ruimte, licht en comfort zonder je buren op schoot? Dit royale 2-slaapkamerappartement van maar liefst 120m² heeft alles wat je nodig hebt — en nog wat extra vierkante meters om in rond te draaien. Gelegen op de eerste verdieping (bereikbaar via lift én trap — voor de sportieve dagen) vind je hier rust vlakbij het centrum. Via de afgesloten inkomhal kom je in een gigantische leefruimte van 42m² — groot genoeg voor een salon, eetplaats. Aansluitend ligt een ruime eetkeuken van 15m² met aparte wasplaats/berging: koken zonder chaos = mogelijk. De nachthal leidt naar 2 forse slaapkamers (16m² en 20m² — ja, echt groot), een terras aan één van de kamers voor ochtendkoffie of avondlucht, een koele berging (perfect voor voorraad of geheime snacks) en de badkamer met douche, lavabomeubel en toilet. Achteraan het gebouw treft een ruime garagebox met elektriciteit — je auto, fiets en hobbyprojecten zullen je dankbaar zijn. Extra bonuspunten: EPC label B (110 kWh/m²) — energiezuinig zonder truien in huis. Elektrische keuring goedgekeurd — geen verrassingen. Rustige ligging, toch dicht bij alles. Kortom: veel ruimte, veel licht, weinig zorgen. Alleen jij ontbreekt nog.
Wg, Vg, Gvkr
Op zoek naar ruimte, licht en comfort zonder je buren op schoot? Dit royale 2-slaapkamerappartement van maar liefst 120m² heeft alles wat je nodig hebt — en nog wat extra vierkante meters om in rond te draaien. Gelegen op de eerste verdieping (bereikbaar via lift én trap — voor de sportieve dagen) vind je hier rust vlakbij het centrum. Via de afgesloten inkomhal kom je in een gigantische leefruimte van 42m² — groot genoeg voor een salon, eetplaats. Aansluitend ligt een ruime eetkeuken van 15m² met aparte wasplaats/berging: koken zonder chaos = mogelijk. De nachthal leidt naar 2 forse slaapkamers (16m² en 20m² — ja, echt groot), een terras aan één van de kamers voor ochtendkoffie of avondlucht, een koele berging (perfect voor voorraad of geheime snacks) en de badkamer met douche, lavabomeubel en toilet. Achteraan het gebouw treft een ruime garagebox met elektriciteit — je auto, fiets en hobbyprojecten zullen je dankbaar zijn. Extra bonuspunten: EPC label B (110 kWh/m²) — energiezuinig zonder truien in huis. Elektrische keuring goedgekeurd — geen verrassingen. Rustige ligging, toch dicht bij alles. Kortom: veel ruimte, veel licht, weinig zorgen. Alleen jij ontbreekt nog.
Wg, Vg, Gvkr
Delen op
Financieel
- Prijs: € 239.500,00
- Provisie: € 135,00
- Onder BTW stelsel: Nee
- Beschikbaarheid: Mits inachtneming huurders
- Servitude: Nee
Terrein
- Grondoppervlakte: 1.590,00 m²
- Tuin: Nee
- Oriëntatie terras: Zuid
Stedenbouw
- Stedenbouwkundige info: Ja
- Bestemming: Woongebied
- Bouwvergunning: Ja
- Verkavelingsvergunning: Nee
- Voorkooprecht: Nee
- Dagvaarding: Geen rechterlijke herstelmaatregel of bestuurlijke maatregel opgelegd
- O-peil: Niet gelegen in een overstromingsgevoelig gebied
- G-score: D
- P-score: D
- Watergevoelig openruimtegebied: Nee
- Vonnissen: Nee
Ligging
- Buurt: Centraal
- School nabij: Ja
- Winkels nabij: Ja
- Openbaar vervoer nabij: Ja
- Autosnelweg nabij: Ja
- Station nabij: Ja
- Sportcentrum nabij: Ja
Comfort
- Gemeubeld: Nee
- Handicapvriendelijk: Ja
- Parlofoon: Ja
- Lift: Ja
- Zwembad: Nee
Technieken
- Elektriciteit: Ja
- Telefoonbekabeling: Ja
Energie
-
110
- EPC score: 110 kWh/m²/jaar
- EPC code: 20200129-0002241965-RES-1
- EPC klasse: B
- Dubbele beglazing: Ja
- Ramen: Hout
- Elektriciteitskeuring: Ja, conform
- Type verwarming: Gas cv
- Verwarming: Individueel
- EPC code: 20200129-0002241965-RES-1
Gebouw
- Bewoonbare oppervlakte: 120,00 m²
- Aantal gevels: 2
- Bouwjaar: 1994
- Staat: Uitstekend
- Verdiep: 1
Indeling
- Woonkamer: 42,00 m²
- Keuken: 15,00 m², VS volledig geïnstalleerd
- Bijkeuken: Ja
- Slaapkamer 1: 20,00 m²
- Slaapkamer 2: 16,00 m²
- Badkamer type: Alle comfort
- Toiletten: 1
- Terras: 3,00 m²
- Wasplaats: Ja
Parking
- Garage: 1
- Parkings binnen: 1